借りる住まい・暮らし

日当たり良好!駅近物件で環境抜群。ペットと住める賃貸マンション

見晴らし◎視界を遮るものが無いため開放感抜群です

外観
玄関

築浅物件で綺麗な外観。生活感のある玄関が好印象です!

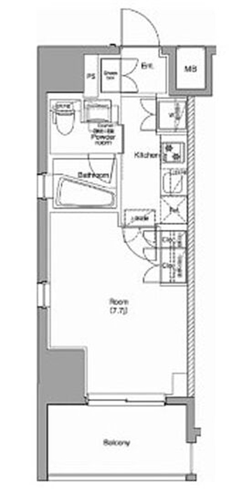
間取り
日当たり良好!駅近物件で環境抜群。ペットと住める賃貸マンション
  • ペット可
  • 2018年
  • 東京都品川区
  • 猫の多頭(2匹)飼いOK!!コンビニやスーパーマーケットなど生活しやすい環境で大好きなペットと一緒に生活しませんか

物件概要

物件名
PREMIUM CUBE 品川戸越 DEUX
賃料
10.3万円
面積
25.74㎡
間取り
1K
所在地
東京都品川区戸越
当物件へのお問い合わせ

関連物件